Affordable Permanent Homes Designed for Real Living

SUCASA® modular homes are designed as a true alternative to traditional home building. Council approved. Class 1a compliant.

SUCASA® Modular Homes

SUCASA® Modular Homes are designed for permanent residential living. Built in a factory and installed on foundations, they offer an efficient alternative to traditional construction. Each home meets Class 1a standards under the National Construction Code, suitable for houses, secondary dwellings and long-term accommodation where approvals allow.

Why Choose SUCASA® Modular?

Council Managed for you

Seven Star Energy Rated

Engineer Certified

Includes a $3000 Appliance Package

For a limited time, SUCASA® Modular Homes include a special offer: choose up to $3,000 worth of appliances from Betta Home Living. This exclusive deal lets you add quality essentials to your new home with ease and value. Conditions apply.

2

The SUCASA® Process

For our modular tiny homes we offer a turnkey service handling council approval, delivery, and installation from start to finish.

This is a Class 1a Residential Dwelling – primary, secondary or detached. NCC compliant and is only subject to local council approval.

433
Three Bedroom
plan2
Montville
plan1
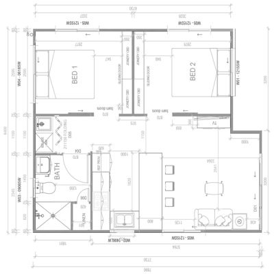
McPhail 2 Bedroom

Like a callback? Please leave a few details.

© 2026 My Little House

Built with 40 years of construction industry experience

What Our Customers Say

Jessie Myers
"Shawna from My Little House has been absolutely amazing to deal with! She has made my experience very smooth and seamless! I am beyond excited to begin the next stage of this process!"
Don Roy
"Thank you My Little House. Our new tiny home on wheels is up and running. My daughter loves it. Big thanks to Donald, definitely recommend him if you're looking for one for yourself."
Sue Dalton
"Thus far I have been absolutely impressed with this business, especially the friendliness, professionalism and efficiency of Shawna. I have no doubt that our little building will be delivered as promised!"

SUCASA Modular Homes Quote Request

This field is for validation purposes and should be left unchanged.
Your 'Build a Tiny Home' calculator form details have been stored and will be submitted with your information in the background to help generate a quote for you.
Name(Required)

Enquiry Form

This field is for validation purposes and should be left unchanged.
Name(Required)