20ft EXPANDABLE HOMES - FREE DELIVERY WITHIN 200 km OF SELECT CBD's* SAVE 15k OFF SUCASA® 37 & $12k OFF SUCASA® 56*
sucas-1

Full Turnkey Package

Rectangle-9.svg

$147,840

(Incl. Council Approval, Delivery, Setup & Installation)

Building Only

Rectangle-9.svg

$124,608

(Ex-Factory)

Introducing the SUCASA® – a certified, sustainable tiny home for first-time buyers, families, or investors. Choosing a modular home should come with clarity and confidence. With the SUCASA® range, every inclusion is clearly defined, so you know exactly what you’re investing in. Our modular homes combine contemporary design, durable materials, and energy-efficient performance as standard – delivering practical, affordable housing without hidden surprises. This guide explains what’s included and how SUCASA® homes are designed for modern Australian living.

Inclusions & Specifications

SUCASA® Modular Homes offers a diverse range of architecturally designed homes, granny flats, and modular living solutions suited to owner-occupiers, investors, and lifestyle buyers. The range includes configurations from 1 to 6 bedrooms, with flexible designs for holiday living, Airbnb and BNB accommodation, pool houses, relaxation spaces, home offices, and small business use. With multiple roof styles and six distinct external design options available, every SUCASA® home is custom-built, with colours and finishes tailored to suit your site, purpose, and personal style—delivering a modular home that is uniquely yours.

Inclusions & Specifications

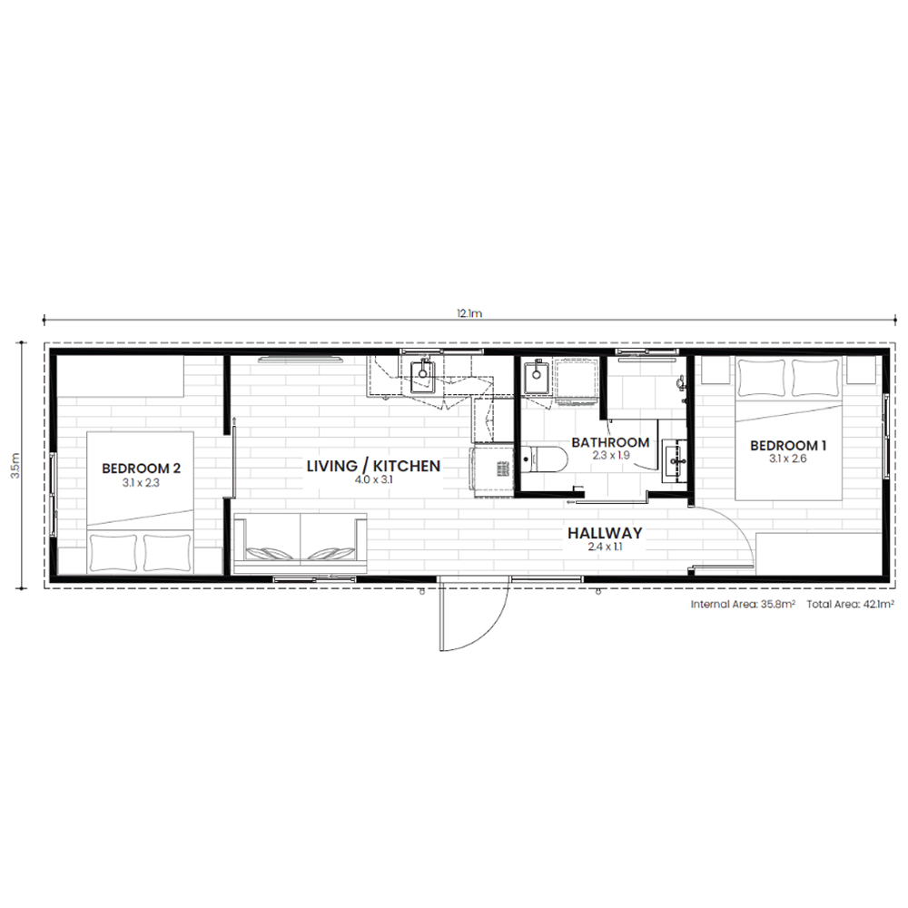
Floor Plans

Find your ideal floor plan today. The SUCASA® range is continually expanding, offering a variety of thoughtfully designed layouts to fit your needs and lifestyle. Explore our growing selection of floor plans now!

Compare the Range

  • Resort Advantage
  • Resort Premium
Resort AdvantageResort Premium
from $167,900
$3999
/year
RoofOffset gable designer roofline with concealed fixingsSkillion roofline with concealed fixings
Patio DeckingComposite designer series (timber effect)Composite classic series (timber effect)
Domain11
Buy Now

FAQs

What is Class 1A?

Class 1A refers to a single dwelling, whether it’s a detached house, tiny home, granny flat or part of a group like a townhouse or a row house.

 

Class 1A is ideal for tiny homes because it provides a solid foundation of safety, comfort, and durability, aligning with the National Construction Code (NCC) standards. These standards ensure the tiny home is structurally sound, fire-safe, energy-efficient, and well-ventilated.

 

By meeting Class 1A criteria, your tiny home can function like a traditional dwelling, offering the same level of security and comfort. This is especially important for long-term living.

 

Our newest model, The SUCASA®, is designed to meet Class 1A and NCC standards, ensuring that it’s built to last while offering you a safe space to call home!

Why is Class 1A Beneficial?

The Class 1A classification allows your tiny home to function like a traditional dwelling, offering the same level of security and comfort as a conventional home—essential for long-term living.

 

With Class 1A certification, your home complies with relevant council regulations for permanent dwellings. This gives you peace of mind, as it is recognised as a permanent structure that cannot be relocated by the council. In contrast, many tiny homes on wheels do not hold Class 1A classification; instead, they are often treated as caravans, which are considered relocatable structures rather than permanent residences. Because caravans lack Class 1A or council approval, local councils can require you to move or remove them at any time, and there may be restrictions on how long they can be occupied consecutively.

 

Once a Class 1A tiny home successfully navigates the council approval process, it is officially recognised as a permanent primary or secondary residence. This classification allows you the flexibility to use your home as you choose—whether as a primary dwelling, granny flat, or Airbnb.

When will the SUCASA® range be available in other states?

At the moment, the SUCASA® Range is exclusively available in Southeast Queensland (SEQ), but we’re actively working on expanding availability across Australia.

 

If you’re located outside SEQ, feel free to reach out and register your interest—we’ll keep you informed as soon as SUCASA® becomes available in your area.

What floor plan options are available?

The SUCASA® Report range offers both one-bedroom and two-bedroom options.

 

For a detailed look at all available floor plans, please refer to our flyer. Feel free to contact our team if you have any questions or need more information.

When can I view the display model?

Our display model is currently under construction at our Brisbane, Queensland HQ and is expected to be ready for viewing in early November. For the time being, Brisbane will be the only location where a display model is available.

Do you supply installation?

While we don’t handle installation directly, we can connect you with our accredited building partners who can provide quotes and manage the installation process. They can also assist with any site modifications needed to complete your build.

Do you offer Finance?

Yes, we offer financing through our partner, Alpha390! To explore your options, click here.

Can I use my own builder or trades?

Yes, you’re welcome to use your own builder for the onsite installation, as we deliver the unit directly to your site. Alternatively, we can connect you with our accredited builders, who bring over 60 years of combined experience in the construction industry.

How long is the wait time before my building arrives?

Thanks to the controlled environment of our manufacturing facility, the SUCASA® Resort range avoids common on-site delays (like weather issues). We can construct and deliver your home within 8–13 weeks from the time your deposit is paid.*

*Terms and Conditions apply

Can I customise SUCASA® products?

At this time, we do not offer customisation options during the factory build. However, after delivery, you can make modifications or additions through your own builder or with assistance from one of our accredited building partners.

How are SUCASA® products different from the My Little House range of expandable tiny homes?

The SUCASA® range offers several key differences compared to our expandable tiny homes.

 

The most notable distinction is the classification. The SUCASA® range is designed to meet Class 1A standards for permanent living—just like traditional houses. These homes comply with the National Construction Code (NCC), ensuring structural integrity, fire safety, insulation, and ventilation for long-term comfort and security.

 

In contrast, our expandable tiny homes are built to be mounted on ADR (Australian Design Rules)-approved trailers. While they offer greater mobility and are ideal for temporary or recreational use, they don’t meet the same permanent dwelling standards as Class 1A homes.

 

SUCASA® homes are proudly designed and manufactured in Brisbane, representing the top tier of our offerings. On the other hand, our expandable range is manufactured overseas by trusted partners.

 

We provide these two distinct options to suit a variety of needs and budgets. Whether you’re looking for a permanent, fully compliant home or a flexible, mobile solution, we’ve got you covered. If you have any questions, our experienced team is here to assist!

Testimonials from some of our satisfied customers

Brad
VIC
After considering many other products I decided to go with My Little House as they offered multiple layout options and the price was more competitive. I was able to customise the layout to suit my needs and the turnaround time was very quick. I had builders install the space and made some modifications like air conditioning to suit my needs. I am extremely happy with how the space looks. I would highly recommend My Little House to anyone.
John
VIC
Our transportable tiny home has been/is a great success since taking delivery in Oct 2021. Office, guest accommodation, weekend hang out for our teenage daughter and her friends, yoga studio, temporary accommodation while we renovate... it meets all of our needs providing spacious and comfortable living space. Compared to the cost of extending our main house it's great value!

Talk to our Knowledgeable Team Today!

for your free no-obligation quote

Leave us your email and stay in the know.

We respect your privacy. Unsubscribe any time.

Enquiry Form

This field is for validation purposes and should be left unchanged.
Name(Required)

Download the SUCASA® Freedom 38m2 Brochure

Want to know more about the SUCASA® Freedom 38m2 Tiny Home? Fill in the form below and we will send you the brochure.

SUCASA® Freedom 38m2 Enquiry

Would you like to know more about one of our Tiny Homes Trailers? Fill in the form below and we will get back to you.

SUCASA® Freedom 38m2 Enquiry

Would you like to know more about one of our Tiny Homes or Accessories? Fill in the form below and we will get back to you.

SUCASA® Freedom 38m<sup>2</sup> Quote Request

This field is for validation purposes and should be left unchanged.
Your 'Build a Tiny Home' calculator form details have been stored and will be submitted with your information in the background to help generate a quote for you.
Name(Required)